Villetta in vendita, Aurelia

Via Giulio Venzi - Roma - Aurelia Rif. 2875P
  • 120 mq
  • 5 locali
€ 369.000,00 € 746,2/mese * es. rata mutuo 30 anni
Descrizione
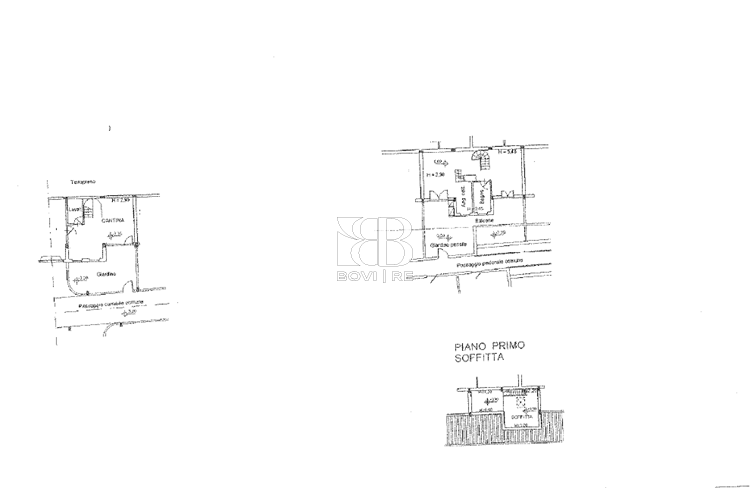
Aurelia, Villetta a Schiera in Vendita a poca distanza dalla Stazione Aurelia, in comprensorio residenziale, trilivelli, ottimo stato, recente costruzione, libera tranquilla luminosa, salone con camino, tre camere, cucina abitabile arredata, doppi servizi, lavanderia, giardino, terrazzo e posto auto. Dilazioni - Permute. Rif. 2875P Tel. 06.83964019 

  • Contratto: Vendita
  • Tipo proprietà: Intera proprietà
  • Prezzo: € 369.000,00
  • Spese mensili: € 70,00
  • Classe catastale: A/7
  • Rendita catastale: € 1264,03
  • Anno di costruzione: 2006
  • Tipo di costruzione: Media signorile
  • Stato di costruzione: Ristrutturato
  • Stato immobile: Libero al rogito
  • Camere da letto: 4
  • Altre camere: 1
  • Tipo arredamento: Parziale
  • Tipo cucina: Abitabile
  • Piani edificio: 3
  • Piano fuori terra: Intero edificio
  • Cantina: Assente
  • Tipo box: Assente
  • N. posti auto: 1
  • Giardino privato: Presente
  • Riscaldamento: Autonomo, a a radiatori, alimentato ametano
  • Climatizzatore: Autonomo
  • Classe energetica: G
  • Indice di prestazione energetica da rinnovabili: 175 kWh/m2anno
  • Indice di prestazione energetica da non rinnovabili: 175 kWh/m2anno
  • Livello estate: buono
  • Livello inverno: buono
  • Videocitofono
  • Fibra ottica

Mappa


Altri immobili simili che ti possono interessare

Vendita
Attività Officina Vendita, San Paolo
14/07/2025
Attività Officina Vendita, San Paolo
Roma - San Paolo Garbatella, Attività commerciale in Vendita su Viale Leonardo da Vinci, opportunità imperdibile ideale per la ristorazione, in negozio di mq 120, angolare disposto su due livelli con canna fumaria, 2 bagni, ubicato su via di alto passaggio e con ottima visibilità e con buon canone di locazione.
  • 120 mq
  • 2 locali
  • € 39.000,00
Vendita
Attività di Casa Vacanze in Vendita, Prati
09/10/2025
Attività di Casa Vacanze in Vendita, Prati
Roma - Prati Prati, Attività di Casa Vacanza in Vendita a pochi passi dal Vaticano, ottimi fatturati, completamente e finemente ristrutturata arredata e accessoriata, piano alto palazzo d'epoca con ascensore, tre camere da letto, sala da pranzo, angolo cottura e tre bagni . Completa l'attività una splendida vista sui tetti di Roma
  • 120 mq
  • 3 locali
  • € 45.000,00
Vendita
Attività in vendita, Battistini
03/11/2022
Attività in vendita, Battistini
Roma - Battistini Via Mattia Battistini, vendesi attività di pizzeria-ristorante adiacente cinema "Andromeda" in punto di passaggio avviato da diversi anni. Si compone di un'ampia sala con 40 coperti, cucina attrezzata, spogliatoio per lo staff, bagno e posti esterni. Ottimo canone di locazione, incassi elevati dimostrabili. Tel. 06/35341280 Rif. 2044B
  • 100 mq
  • 1 locali
  • € 90.000,00
Vendita
Locale commerciale in vendita, Palmarola
29/03/2023
Locale commerciale in vendita, Palmarola
Roma - Ottavia Palmarola, locale commerciale a reddito in vendita (scadenza contratto 2029). Si compone di due vetrine su strada con spazio esterno ad uso esclusivo, ampio locale aperto con possibilità di divisione in più ambienti data l'altezza dei soffitti di oltre 4,5 m e le numerose finestre, bagno e antibagno. Rendita del 7 % annuo. Tel. 06/35341280 Rif. 2154B Palmarola, commercial space for sale (contract expires 2029). It consists of two shop windows on the street with external space for exclusive use,
  • 126 mq
  • 1 locali
  • € 150.000,00
Vendita
Attività Bar Tavola Calda, Eur - Torrino
09/10/2025
Attività Bar Tavola Calda, Eur - Torrino
Roma - Torrino Torrino Piazzale Cina, Vendita Attività Bar Tavola Calda in ottima posizione, collocato vicino a strutture scolastiche ed uffici. Locale completamente ristrutturato, con vetrina fronte strada, al piano terra di 102 mq, composto da: bancone attrezzato (caldo/freddo), posti a sedere interni 40 ed area pertinenziale di 30 mq esterna attrezzata con 53 posti. Al piano S1 troviamo: una cucina con canna fumaria, magazzino, servizi igienici e spogliatoi.
  • 102 mq
  • 2 locali
  • € 160.000,00
Vendita
Attività Bar Tavola Calda, Eur - Torrino
09/10/2025
Attività Bar Tavola Calda, Eur - Torrino
Roma - Torrino Torrino Piazzale Cina, Vendita Attività Bar Tavola Calda in ottima posizione, collocato vicino a strutture scolastiche ed uffici. Locale completamente ristrutturato, con vetrina fronte strada, al piano terra di 102 mq, composto da: bancone attrezzato (caldo/freddo), posti a sedere interni 40 ed area pertinenziale di 30 mq esterna attrezzata con 53 posti. Al piano S1 troviamo: una cucina con canna fumaria, magazzino, servizi igienici e spogliatoi.
  • 102 mq
  • 2 locali
  • € 160.000,00