Appartamento in Vendita, Termini

Via dei mille - 00185 Roma - Castro Pretorio Rif. 3002O
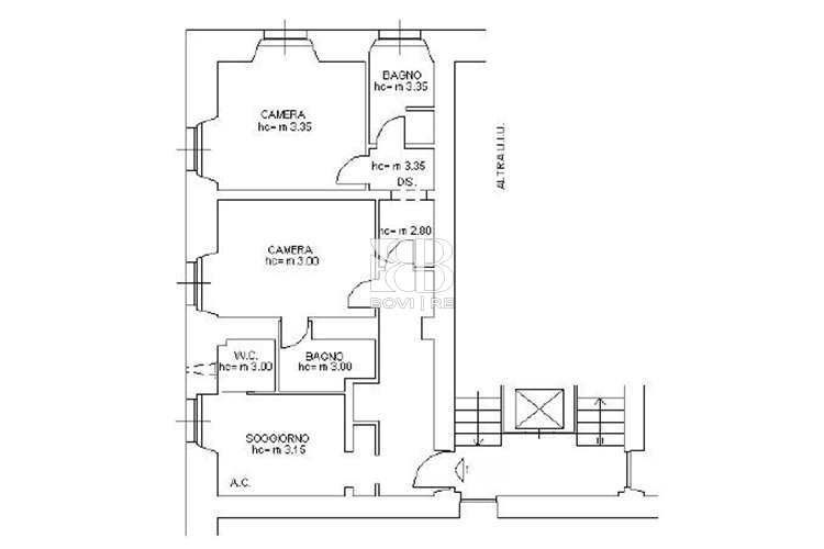
  • 82 mq
  • 3 locali
  • 3 bagni
€ 399.000,00 € 806,87/mese * es. rata mutuo 30 anni
Descrizione
Appartamento in Vendita a pochi passi dai principali servizi, in palazzo d’epoca recentemente ristrutturato, tranquillo luminoso, soggiorno con cucina a vista, due camere, tripli servizi. Ottimo stato con possibilità di alto reddito. 

  • Contratto: Vendita
  • Tipo proprietà: Intera proprietà
  • Prezzo: € 399.000,00
  • Anno di costruzione: 1900
  • Stato di costruzione: Ristrutturato
  • Stato immobile: Libero al rogito
  • Camere da letto: 2
  • Bagni: 3
  • Altre camere: 1
  • Piano: 1
  • Piani edificio: 6
  • Ascensore: Si
  • Classe energetica: D
  • Indice di prestazione energetica da non rinnovabili: 116 kWh/m2anno

Mappa


Altri immobili simili che ti possono interessare

Vendita
Attività di Casa Vacanze in Vendita, Cipro
28/08/2025
Attività di Casa Vacanze in Vendita, Cipro
Roma - Cipro Attività di Casa Vacanze Imprenditoriale in Vendita, a pochi passi dai Musei Vaticani, completamente e finemente ristrutturata con materiali di pregio, primo piano, salone con angolo cottura e divano letto, camera matrimoniale, camera singola, bagno e due balconi. Contratto 4+4 cessione ramo d'azienda con possibilità di nuovo contratto sia a persona fisica che a società. Ottimo Investimento.
  • 80 mq
  • 3 locali
  • € 45.000,00
Vendita
Box Auto in Vendita, Acilia
18/10/2024
Box Auto in Vendita, Acilia
Roma - Acilia Acilia, Box Auto in Vendita, Via dei Romagnoli. Ampio Box Auto in Vendita in Via dei Romagnoli . Attualmente, l'immobile è adibito ad appartamento ma ripristinabile in un unico spazioso locale da destinare a parcheggio o deposito, oppure ad una soluzione frazionabile in 2 box autonomi. Non ci sono spese condominiali. Dilazioni - Permute. Rif. 2663S - tel- +39.06.69353612
  • 70 mq
  • 3 locali
  • € 50.000,00
Vendita
Appartamento in Vendita, Acilia
18/11/2024
Appartamento in Vendita, Acilia
Roma - Acilia Acilia, Appartamento in Vendita, Via dei Romagnoli. A due passi dal mare, promuoviamo la vendita di un'abitazione Loft attualmente suddivisa in un grande spazio sala che riunisce una zona cucina, un ambiente letto ed un locale bagno con doccia. La collocazione di questo immobile, a metà strada tra il centro della Capitale ed il Litorale romano di Ostia, è un valore aggiunto ad un'ipotesi di acquisto per investimento . Dilazioni - Permute. Rif. 2697S - tel- +39.06.69353612
  • 70 mq
  • 2 locali
  • 1 bagni
  • € 50.000,00
Vendita
Licenze Gastronomia  in Vendita, Centro Storico
25/05/2024
Licenze Gastronomia in Vendita, Centro Storico
Roma - Centro Storico Centro Storico, Vendita Licenze Gastronomia Calda e Fredda. Locale commerciale in posizione centrale esposto ad alto passaggio soprattutto turistico : una scala interna collega il piano terra al piano inferiore con bagno ed antibagno. Ottima opportunità in prossimità di uno degli eventi più importanti al mondo quale il Giubileo 2025 . Rif. 2546T - tel. 06/69326573
  • 70 mq
  • 2 locali
  • € 50.000,00
Vendita
Appartamento in Vendita, Canterano
05/11/2024
Appartamento in Vendita, Canterano
Canterano - VIA GUGLIELMO MARCONI Canterano, Appartamento in Vendita. L'immobile, di circa 80 mq e ben ristrutturato, si sviluppa su due livelli collegati da scala interna ed è caratterizzato da un impianto planimetrico compatto e regolare: al piano terra ci accoglie un salone - soggiorno con cucina abitabile mentre al piano superiore troviamo due camere da letto e un bagno finestrato. Rif. 2679S- Tel. +39.06.69353612
  • 80 mq
  • 4 locali
  • 1 bagni
  • € 62.000,00
Vendita
Box in Vendita, Tuscolana
03/11/2022
Box in Vendita, Tuscolana
Roma - Quadraro Via Tuscolana, adiacente Cinema Atlantic, ampio box in vendita. La metratura permette di parcheggiare fino a 5 auto capienti e la cubatura (già soppalcata), di oltre 4 m, permette inoltre un comodo uso magazzino. Serranda elettrica e ampi spazi di manovra in garage video sorvegliato. Dilazioni - Permute. Rif. 2042 Tel: 0669353612
  • 75 mq
  • 1 locali
  • € 79.000,00